Si buscas casa, piso, vivienda rural o finca en la zona de Trives, Manzaneda, San Xoán de Río y Queixa esta es tu web. Cerca de la Estación Esquí de Manzaneda y la Ribeira Sacra, Ourense.

Pisos de nueva construcción situados San Roque, al lado del Ayuntamiento de Pobra de Trives.
Situados en un edificio que cuenta con ascensor, cada uno de ellos tiene:
El sistema de calefacción es eléctrico. Se venden con la posibilidad para el cliente de elegir los acabados de las distintas estancias del piso, mobiliario de cocina, armarios, etc.
Están ubicados en San Roque, al lado del ayuntamiento, en frente de la iglesia. Además al este del edificio se ubica una plaza con equipamiento de juegos para niños.

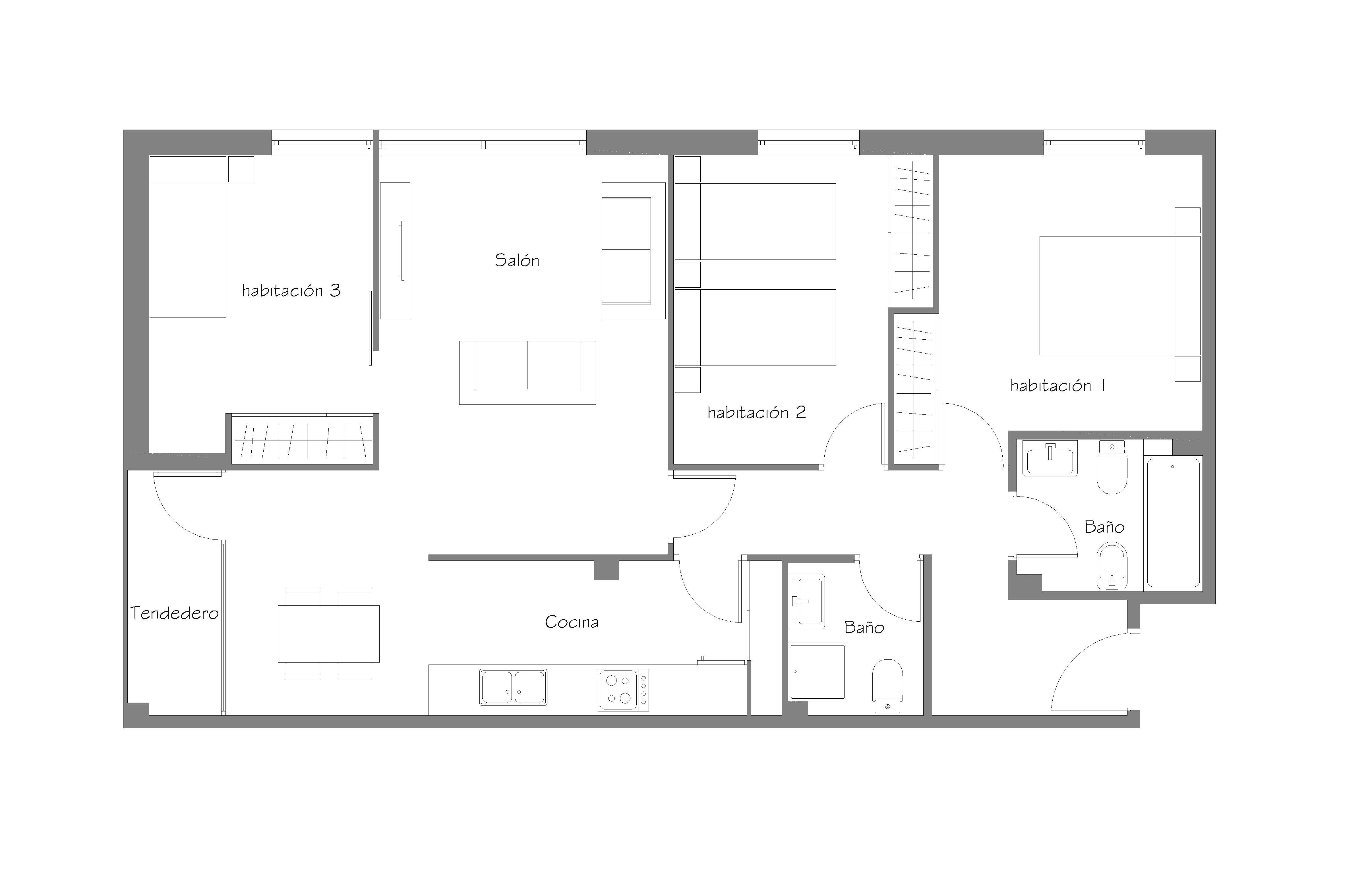
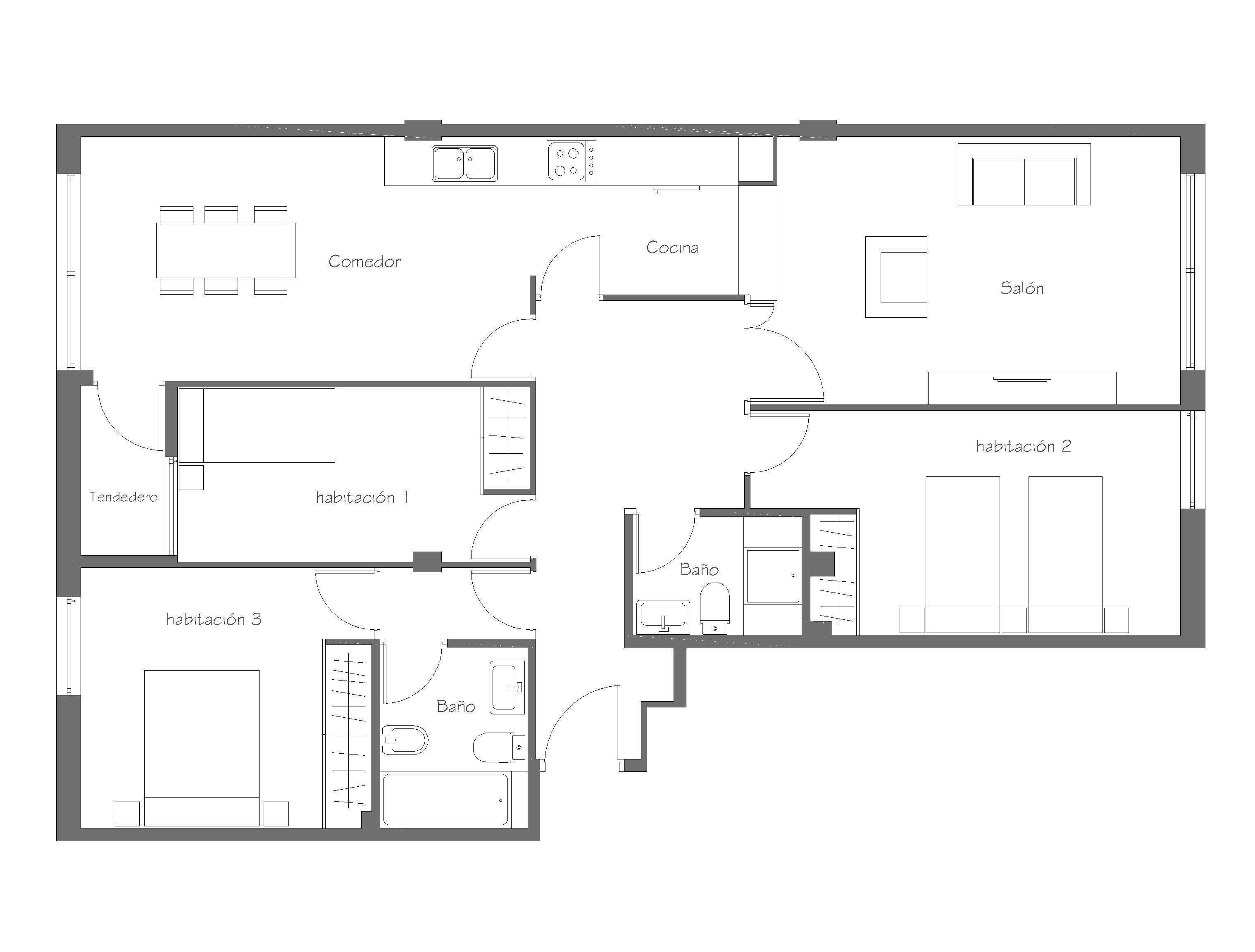
Los siguientes planos muestran la distribución interior:
Distribución 1
Fotos del exterior del edificio:

Se ofrecen con la posibilidad de adquirir plaza de garaje en edificio contiguo.
Certificado energético
En tramite.
Situación
Información y venta__________
Para ampliar información y visitas contactar en:
Teléfono 641 23 13 56 | email: inmobiliariatrives@gmail.com