Si buscas casa, piso, vivienda rural o finca en la zona de Trives, Manzaneda, San Xoán de Río y Queixa esta es tu web. Cerca de la Estación Esquí de Manzaneda y la Ribeira Sacra, Ourense.

Se trata de una promoción de obra nueva de un edificio con dos pisos situado en la Carretera Encomenda 10.
El proyecto consta de dos pisos, uno en la planta 01 y otro en la planta 02, garajes en planta baja y trasteros en planta bajo cubierta. Se vende sobre plano, con la posibilidad de elegir acabados, mobiliario de cocina, así como otros detalles.
Descripción de los pisos
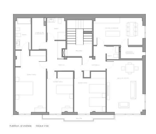
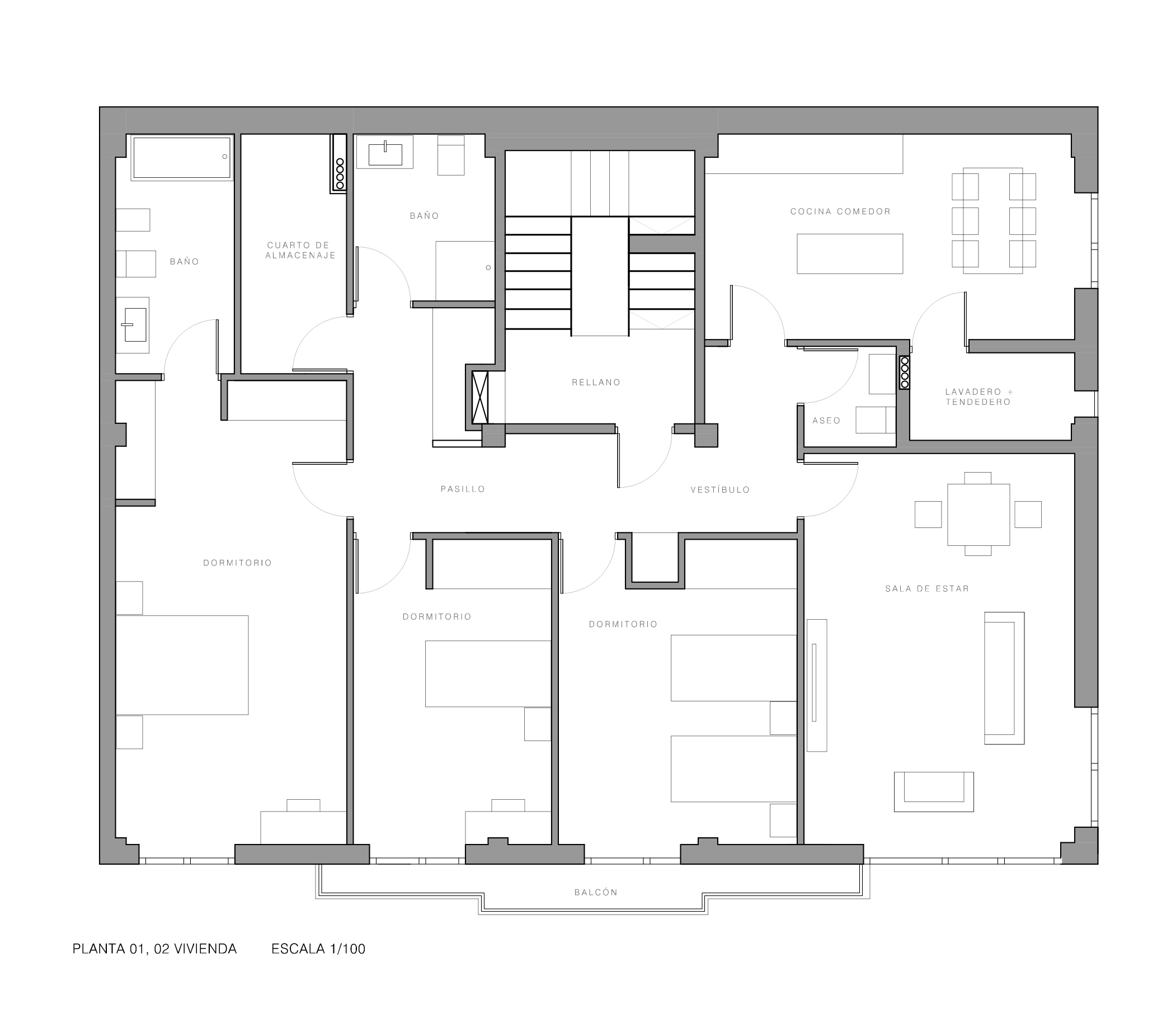
Ambos pisos tiene la misma distribución en planta, con una amplia superficie construida.
Disponen 3 dormitorios, sala de estar, cocina, 2 cuartos de baño, aseo, lavadero-tendedero y cuarto de almacenaje. La siguiente imagen muestra la distribución en planta.
En la planta 00 de acceso desde Carretera da Encomeda y Calle Ferradas tiene dos amplios garajes así como el portal y los espacios destinados a sala de calderas.
El edificio dispone de dos trasteros en la planta bajo cubierta.
Certificado energético
En tramite.
Situación
Se encuentra en el número 10 de Carretera de la Encomienda. A 100 m de la casa de la cultura y 200 m del instituto IES Germán Ancochea, en Pobra de Trives.
Información y venta
Para solicitar información, plazos de ejecución, o cualquier otro tipo de datos contactar en:
988 33 02 33 Constructora Cefer C/ San Martín 16, bajo
_________